Как строилась резиденция Рамзана Кадырова — с секретным бункером, кинозалом и молельной
Как строилась резиденция Рамзана Кадырова — с секретным бункером, кинозалом и молельной
13 июля 2020
На этой неделе мы расскажем вам о том, как зарабатывает руководство Чеченской республики. Завтра читайте наше большое расследование, а пока важная деталь. В ходе работы мы получили интересную переписку о строительстве резиденции Рамзана Кадырова в его родовом селе — Центорое (это, как минимум, третья резиденция главы Чечни, помимо тех, что в Грозном и Гудермесе).
Эскиз резиденции архитектор отправил куратору стройки в 2008 году. Только работа над этим эскизом стоила 7,5 млн рублей — столько Кадыров зарабатывает сейчас за год.
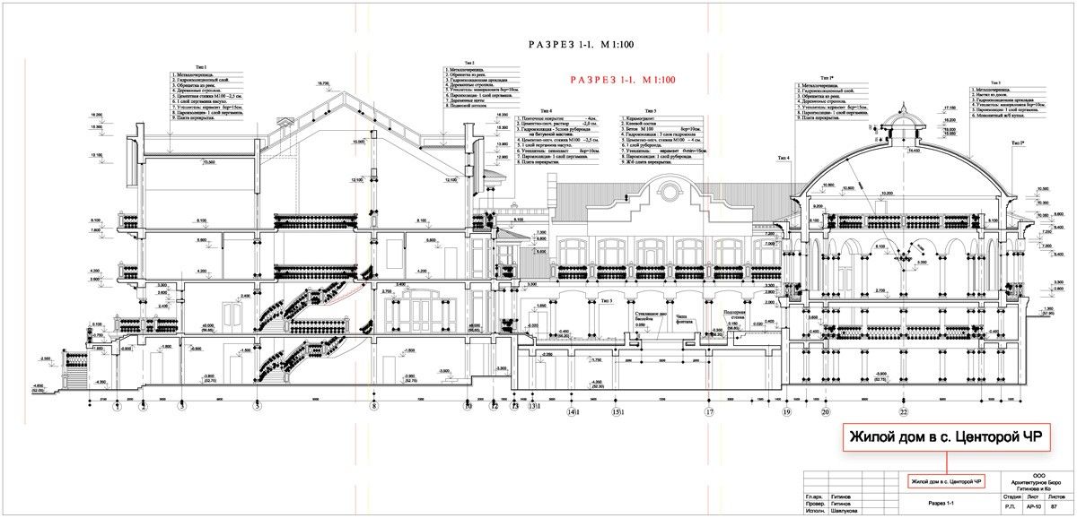
Из приложенных документов следует: площадь внутренних убранств нерабочей части резиденции — не менее трех тысяч квадратных метров. Она состоит из подвала и трех этажей.

В подвале есть спортзал, на первом этаже — бассейн с парной, на третьем этаже — зона СПА и турецкая парная. Еще есть кинотеатр, бильярдный зал и молельный зал. На втором этаже не менее 11 помещений (женская и гостевые спальни, а также детские), каждая из которых со своей ванной и гардеробной. На третьем этаже спальня самого президента площадью с большую квартиру — почти 88 кв. м.
Рабочую часть резиденции создатели сознательно отделили из соображений безопасности. «Плохо размещать апартаменты Президента над помещениями администрации Президента, т.к. в них, теоретически, возможно пронести взрывное устройство», — говорится в одном из писем.
А еще отдельно спрятан тайный бункер. В переписке архитектор так и пишет: «Бункер лучше вынести за пределы периметра здания и соединить с ним подземными переходами. В идеале — никто из персонала не должен знать, где находится вход в бункер. Возможно, стоит организовать несколько фальшивых входов».
К 2011 году строительство резиденции было практически закончено. Тогда в интернете стали появляться фотографии шикарных убранств с позолотой на унитазах, сводчатыми потолками и колоннами. Все выглядело настолько шикарно, что по ошибке дворец принимали за резиденцию Кадырова в Грозном.
12
